Баня из бруса 5 на 8 (Б-144), 40 м²

Площадь oбщая площадь 40 м²
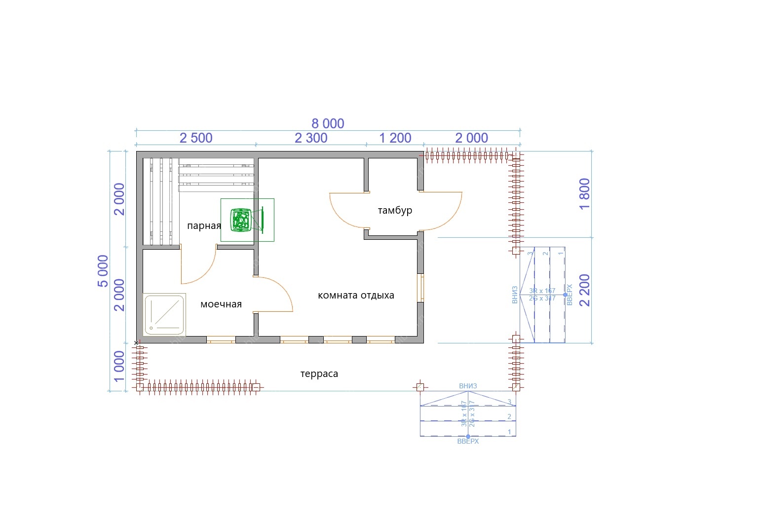
Размеры по внешней стороне 5×8 м

Стоимость

-6 % 816 000 от 770 000 руб.
Оставить заявку

Обсудить в мессенджере

Баня из бруса 5×8 (Б-144), 40 м² – это компактная и экономичная баня из категории Бани из бруса. Размеры 5 на 8 метра и площадь 40 кв. м делают ее идеальной для небольших участков. Баня построена из бруса, что обеспечивает аккуратный внешний вид и простоту сборки. Текущая стоимость – 770 000 рублей (старая цена 816 000 рублей). Доступен широкий выбор комплектаций (770000, 872000, 968000, ----------------------------, --------------------, -----------------------, 1216000, 1395000, 1663000 руб.), позволяющих подобрать оптимальный вариант. Это отличный стартовый вариант для тех, кто хочет обзавестись собственной баней, не затрачивая больших средств. Функциональность и доступность в компактном исполнении.

Цены на баню 5×8 из профилированного бруса

Комплектации ∅ 90×140 мм
Стена: 9 см
∅ 140×140 мм
Стена: 14 см
∅ 190×140 мм
Стена: 19 см
Под усадку
(брус естественной влажности)
770 000 руб 872 000 руб 968 000 руб
Под ключ
(брус естественной влажности)
---------------------------- руб -------------------- руб ----------------------- руб
Под ключ
(брус камерной сушки)
1 216 000 руб 1 395 000 руб 1 663 000 руб

Подарки

Комплектация бани

Вы можете выбрать прямой профиль бруса или профиль блок-хаус (закругленный под бревно с одной из сторон)

Профили бруса
Конструктивный элемент Материалы

Фундамент. Узнать о видах фундамента

Рассчитывается отдельно

Высота потолков

Высота потолка на первом этаже 2.15 м. Если проект предусматривает мансардный этаж, то его высота будет 2.2 м.

Капитальные стены 1-го этажа

Мы предлагаем на выбор профилированный брус с сечением: 90×140мм, 140×140мм, 140×190мм

Обвязка

Для обвязки мы используем обрезной брус: 100×150мм, 150×150мм,150×200мм, в зависимости от сечения проф. бруса капитальных стен

Лаги пола первого этажа

Лаги пола первого этажа изготовлены из доски 40×150мм. Для надежности мы укладываем их с шагом 60 см

Черновой пол

Для устройства чернового пола используется обрезная доска 20×100 мм

Чистовой пол

Пол чистовой выполнен из шпунтованой доски камерной сушки толщиной 27 мм

Перегородки

1-го этажа

Перегородки изготавливаем из профилированного бруса

Перекрытие

В качестве межэтажного перекрытия служит доска 40×150мм с шагом 50-80 см

Конструкция фронтонов

Выполнена из доски 40х100мм. Имеет шаг 80-100 см

Стропильная система

Стропила изготовлены так же из доски 40×100мм и имеют шаг в 1 метр

Перегородки мансардного этажа (если предусмотрен проектом)

Выполняются по каркасно-щитовой технологии

Обрешетка крыши

Обрешетка доской 20×100мм с шагом не более 300-350 мм

Парогидроизоляция

Используем мембранную пленку

Ветро-влагозащита пола 1-го этажа

Пергамин

Фронтоны крыши (отделка)

Фронтоны мы зашиваем имитацией бруса камерной сушки. Это красиво и практично. Мы не рекомендуем выбирать в качестве фронтонов брус.

Пароветро-изоляция мансарды

Здесь так же используется мембранная пленка

Отделка мансарды

Внутреннюю отделку выполняем имитацией бруса камерной сушки

Потолок

Отделка потолка так же имитацией бруса камерной сушки

Утепление

Утепление пола и потолка производится материалами ISOVER или KNAUF по умолчанию, толщина утеплителя составляет 100 мм. По Вашему желанию мы можем ее увеличить.

Межвенцовый утеплитель

В пазах между венцами укладываем утеплитель — льноджут. Он защищает от теплопотерь.

Утепление

мансардного этажа (если предусмотрен проектом)

Утепление производится материалами ISOVER или KNAUF по умолчанию, толщина утеплителя составляет 100 мм. По Вашему желанию мы можем ее увеличить.

Перегородки

Мансардного этажа

Каркасно-щитовые без утеплителя

Кровля

Кровельный материал — Ондулин. На выбор есть красный, зеленый или коричневый цвет. Материал волнистой формы и очень симпатично выглядит.

Поднебесники

Зашиты имитацией бруса камерной сушки.

Окна

Двойные деревянные окна, остеклены и имеют уплотнитель на створке и всю фурнитуру.

Двери

Деревянные, филенчатые двери. Дверь в парное отделение из осины с стеклянной вставкой.

Лестница на второй этаж (Если предусмотрен в проекте)

Лестница изготовлена из строганного бруса 90×140 мм. Имеет фигурный поручень из дерева. Точеные столбы и балясины создают эстетику, а ступени мы делаем из шпунтованной доски толщиной 36 мм.

Плинтус

По всему периметру пола, потолка, а так же в углах

Наличник на окнах и дверях

Для наличников используем имитацию бруса камерной сушки.

Отделка парного помещения.

Важно, создать в парной так называемый термос. Для этого мы используем Наноизол, если проще — специальную фольгу. После выполняем отделку стен осиновой вагонкой

Пологи (полки)

Изготовлены из бруска и обшиты осиновой вагонкой. Красиво и надежно!

Моечная

В этой комнате устанавливаем душевой поддон с системой вывода воды.

Банная печь

В стоимость проекта не входит банная печь. Мы предлагаем Вам выбрать одну из наших печей для своей бани. Все печи, которые мы устанавливаем в бани прошли проверку временем и зарекомендовали себя. Мы не устанавливаем печи неизвестных нам производителей. Какая печь подойдет для Вашей бани уточните у менеджера по телефону или по электронной почте.

При желании Вы можете заказать следующие опции

Конструктивный элемент Материалы

+ 300-600 руб/м. п. В зависимости от сечения.

Увеличение высоты сруба на 1 венец (+14 см)

+ 4500 руб

Дополнительная перегородка

+ 1500 руб

Перегородка из бруса взамен каркасной

+500 руб/кв.м

Обработка основания, черновых полов и половых лаг антисептическим составом

+370 руб/кв.м

Покраска стен снаружи или внутри

+150 руб/кв.м

Увеличение толщины утеплителя на 50 мм

+250 руб/кв.м

Шпунтованная доска на чистовой пол толщиной 36 мм вместо 27 мм

+850 руб/кв.м

Установка металлочерепицы на кровлю вместо ондулина (цвет на выбор)

+ 10 000 руб

Металлическая входная дверь вместо деревянной

+7 000 руб/угол

Сборка в «теплый угол» (иногда мы дарим эту опцию, уточните у менеджера)

+2 000 руб/ряд

Сборка на деревянные нагеля (береза)

+ 3 000 руб

Изменение размера окна на 1×1.2 м

 

Возможно заменить окна на пластиковые стеклопакеты. Уточняйте у менеджера стоимость.

Фотографии бань

Почему выбирают нас

1515 лет опыта. Рубим и строим с 2008 года

033 собственные производственные площадки

1414 бригад сборщиков / 3 бригады плотников на каждой площадке

35Собираем от 35 проектов в месяц

20Работаем более чем в 20 регионах РФ, в т.ч. Крым

0%Ноль негативных отзывов в интернете

WhatsApp
Подпишитесь на наш Телеграм канал!